Skip links

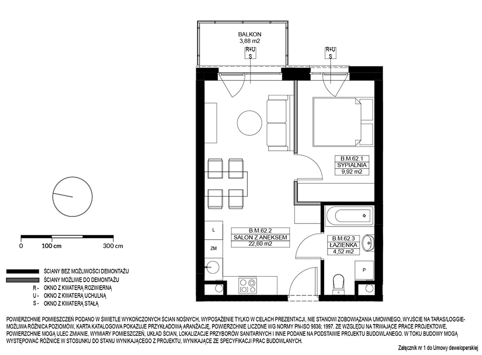
Mieszkanie A3.M.62

287 022,96 PLN brutto

7 749,00 PLN brutto/m2

Status:  Dostępne

Budynek: A3
Mieszkanie: 62
Powierzchnia: 37.04 m2
Piętro: 5

Biuro sprzedaży:
sprzedaz@osiedleprzyszlosc.pl
tel. +48 724 881 911