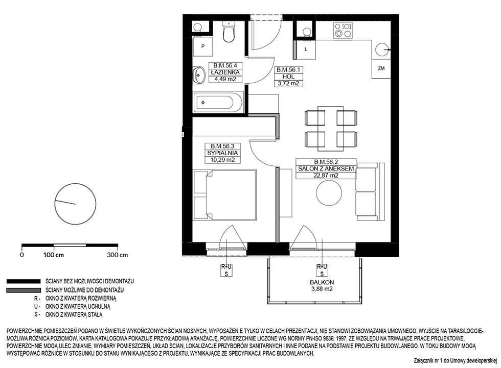
Mieszkanie A3.M.56
318 118,75 PLN brutto
7 689,60 PLN brutto/m2
Status: Dostępne
| Budynek: | A3 |
| Mieszkanie: | 56 |
| Powierzchnia: | 41.37 m2 |
| Piętro: | 5 |
Biuro sprzedaży:
sprzedaz@osiedleprzyszlosc.pl
tel. +48 724 881 911

