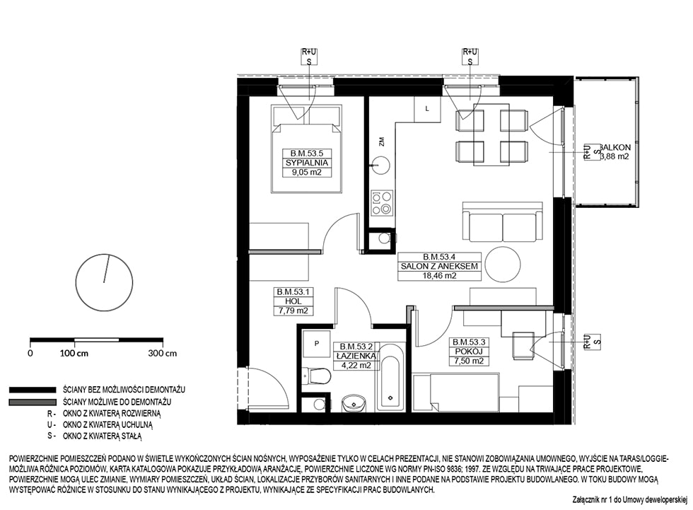
Mieszkanie A3.M.53
360 018,54 PLN brutto
7 635,60 PLN brutto/m2
Status: Dostępne
| Budynek: | A3 |
| Mieszkanie: | 53 |
| Powierzchnia: | 47.15 m2 |
| Piętro: | 4 |
Biuro sprzedaży:
sprzedaz@osiedleprzyszlosc.pl
tel. +48 724 881 911

