Skip links

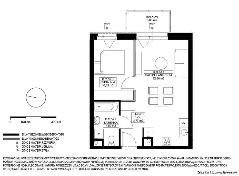
Mieszkanie A3.M.52

319 041,50 PLN brutto

7 689,60 PLN brutto/m2

Status:  Dostępne

Budynek: A3
Mieszkanie: 52
Powierzchnia: 41.49 m2
Piętro: 4

Biuro sprzedaży:
sprzedaz@osiedleprzyszlosc.pl
tel. +48 724 881 911