Skip links

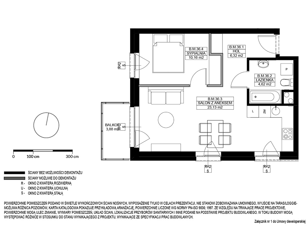
Mieszkanie A3.M.36

340 111,01 PLN brutto

7 689,60 PLN brutto/m2

Status:  Dostępne

Budynek: A3
Mieszkanie: 36
Powierzchnia: 44.23 m2
Piętro: 3

Biuro sprzedaży:
sprzedaz@osiedleprzyszlosc.pl
tel. +48 724 881 911