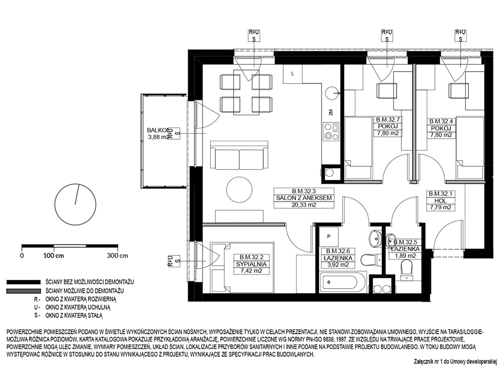
Mieszkanie A3.M.32
430 035,53 PLN brutto
7 498,44 PLN brutto/m2
Status: Dostępne
| Budynek: | A3 |
| Mieszkanie: | 32 |
| Powierzchnia: | 57.35 m2 |
| Piętro: | 2 |
Biuro sprzedaży:
sprzedaz@osiedleprzyszlosc.pl
tel. +48 724 881 911

