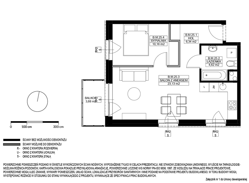
Mieszkanie A3.M.25
334 378,80 PLN brutto
7 560,00 PLN brutto/m2
Status: Dostępne
| Budynek: | A3 |
| Mieszkanie: | 25 |
| Powierzchnia: | 44.23 m2 |
| Piętro: | 2 |
Biuro sprzedaży:
sprzedaz@osiedleprzyszlosc.pl
tel. +48 724 881 911

