Skip links

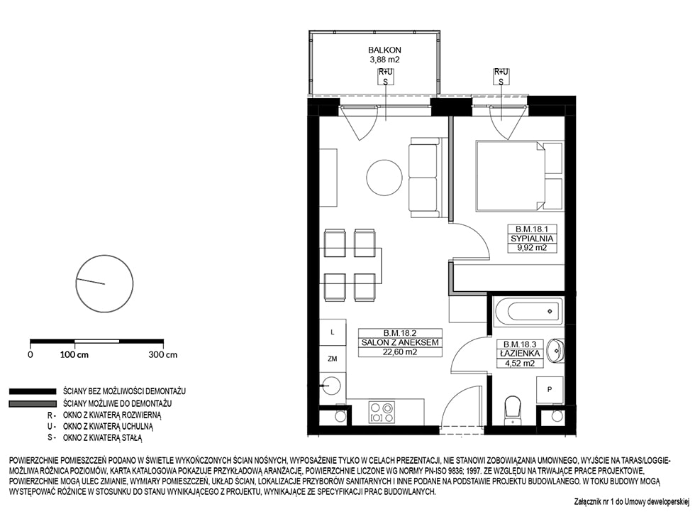
Mieszkanie A3.M.18

277 222,18 PLN brutto

7 484,40 PLN brutto/m2

Status:  Rezerwacja

Budynek: A3
Mieszkanie: 18
Powierzchnia: 37.04 m2
Piętro: 1

Biuro sprzedaży:
sprzedaz@osiedleprzyszlosc.pl
tel. +48 724 881 911