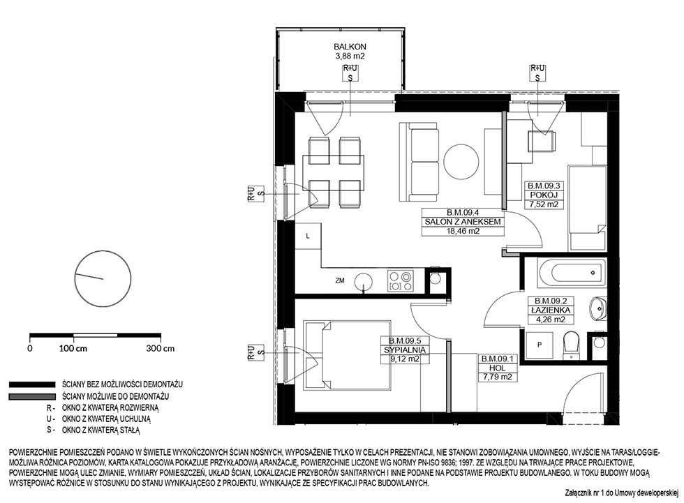
Mieszkanie A3.M.09
339 446,05 PLN brutto
7 199,28 PLN brutto/m2
Status: Dostępne
| Budynek: | A3 |
| Mieszkanie: | 09 |
| Powierzchnia: | 47.15 m2 |
| Piętro: | Parter |
Biuro sprzedaży:
sprzedaz@osiedleprzyszlosc.pl
tel. +48 724 881 911

