Skip links

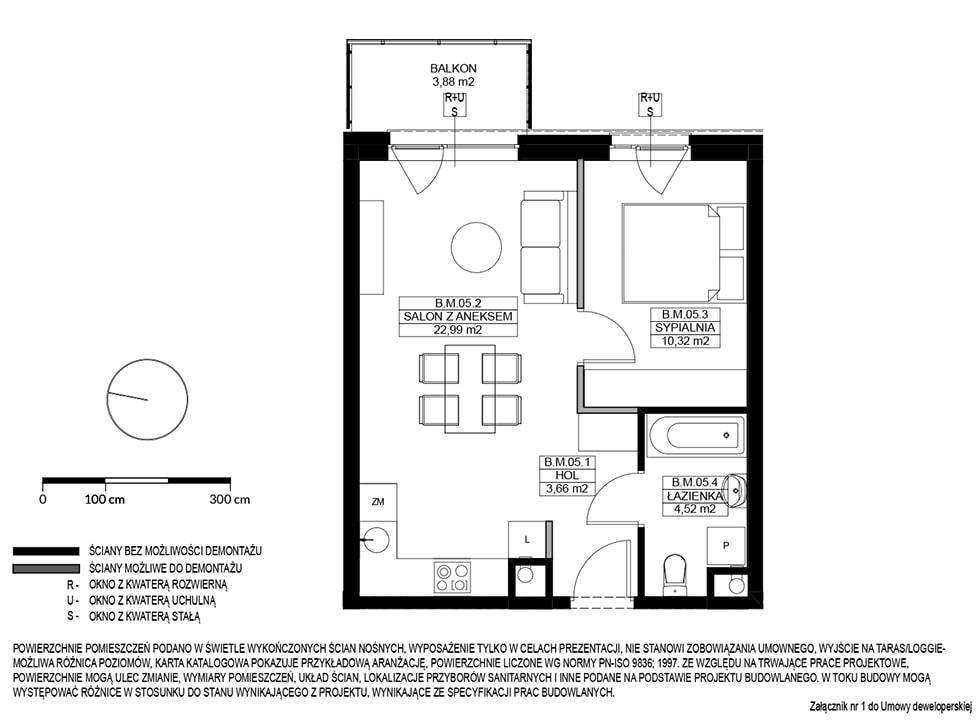
Mieszkanie A3.M.05

298 698,13 PLN brutto

7 199,28 PLN brutto/m2

Status:  Dostępne

Budynek: A3
Mieszkanie: 05
Powierzchnia: 41.49 m2
Piętro: Parter

Biuro sprzedaży:
sprzedaz@osiedleprzyszlosc.pl
tel. +48 724 881 911